Eiendom boliger for unge Spydkasteren på Fornebu Fornebuleilighet for unge

Bærum kommune eier i dag 65 boliger på Fornebu til utleie for unge under 35 år. Boligene tilbys fortløpende så snart de blir ledige, etter venteliste. Dato for når søknaden kom inn styrer rekkefølgen på ventelisten

Nøkkelinformasjon

Antall leiligheter
65
Leilighetene
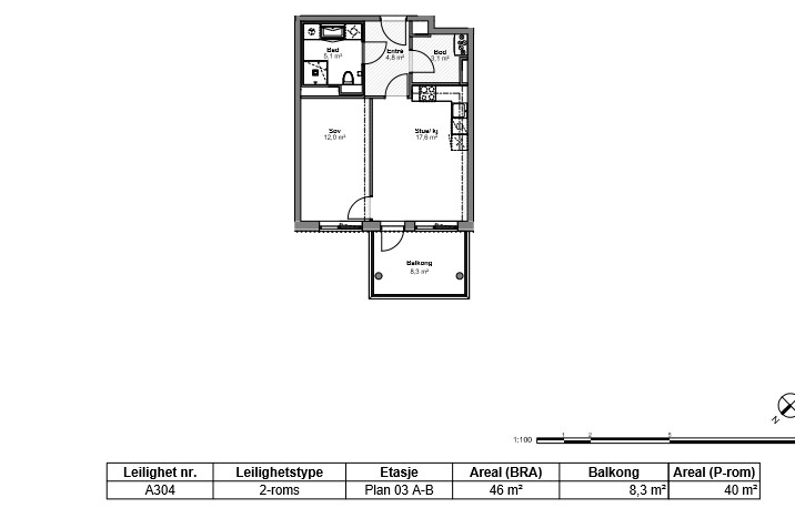
1-, 2- og små 3-roms leiligheter
Plassering
i forskjellige sameier på Fornebu
Pris
Husleien tilsvare 70% av markedsleie. I tillegg kommer kostnad for energi/strøm og vann

Boligene ligger spredt i forskjellige sameier på Fornebu og består av 1, 2 og små 3-roms leiligheter. 

Boligene tilbys fortløpende så snart de blir ledige, etter venteliste.

Her finner du søknadsskjema med utfyllende informasjon

Fornebu - boliger for unge Leilighet skisse Fornebu Boliger for unge - Fornebu  - Blokker

Kriterier

  • være under 35 år
  • ha bodd i Bærum kommune minimum tre år eller med arbeidssted i Bærum kommune
  • betalingsevne for husleie
  • ikke eie egen bolig

Her finner du søknadsskjema med utfyllende informasjon